Koza 49 İstanbul’un kalbinde, Salacak’ın sakin atmosferinde yükselen yeni nesil bir konut projesidir. Estetik mimarisi, işlevsel planlaması ve yüksek inşaat kalitesiyle Koza Mesken imzasını taşıyan bu özel yapı, hem yatırım hem yaşam değeriyle öne çıkıyor.

Koza 49
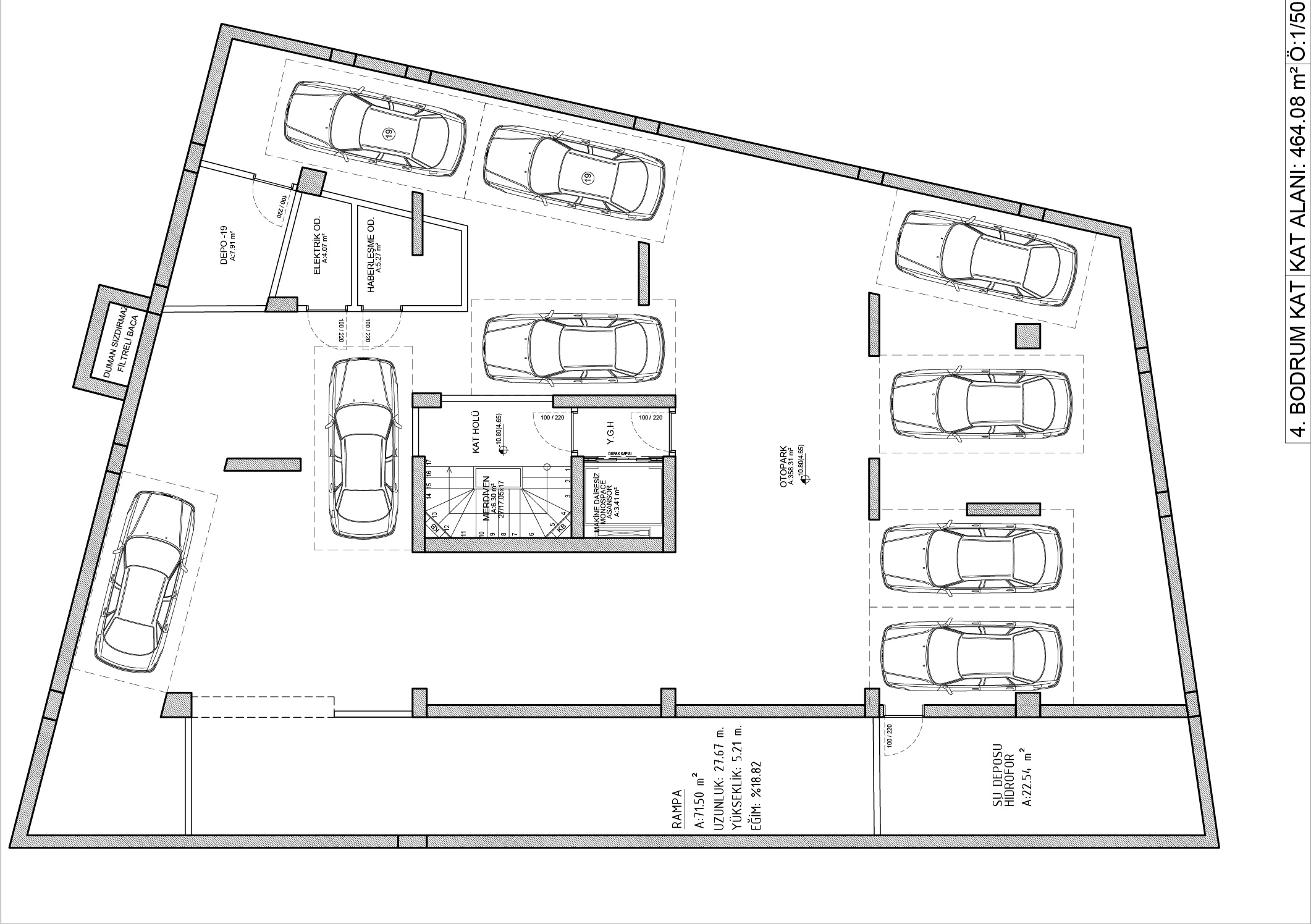
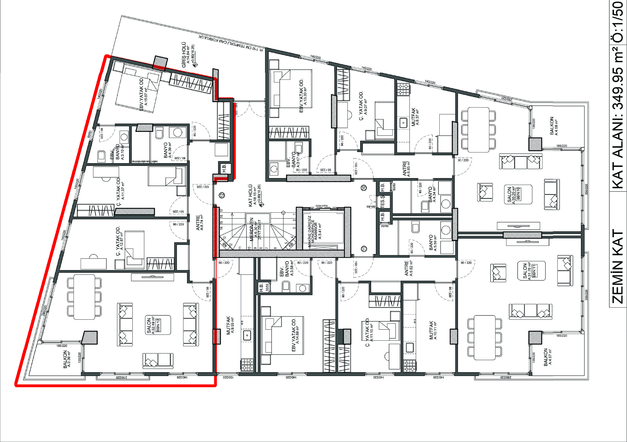
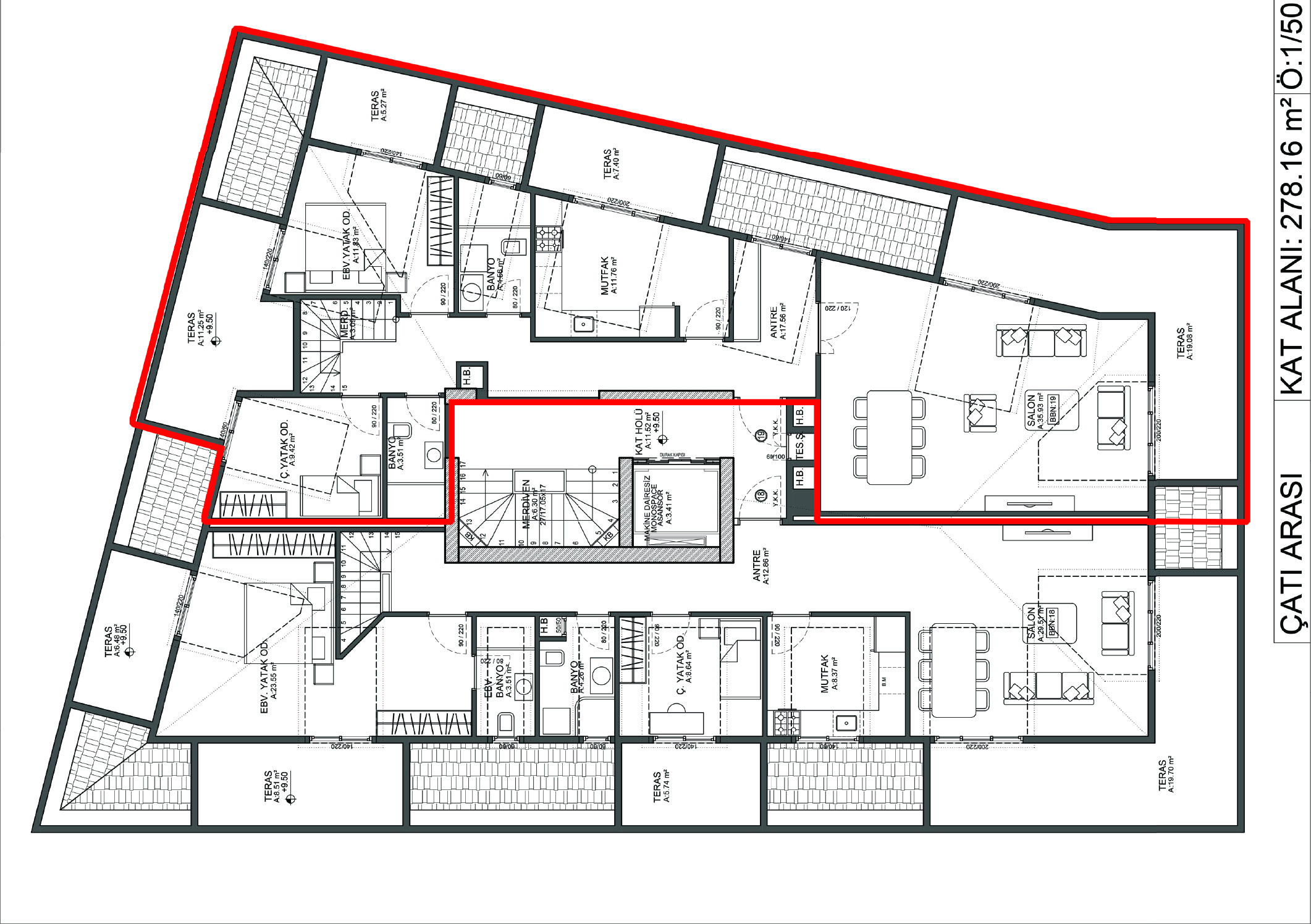
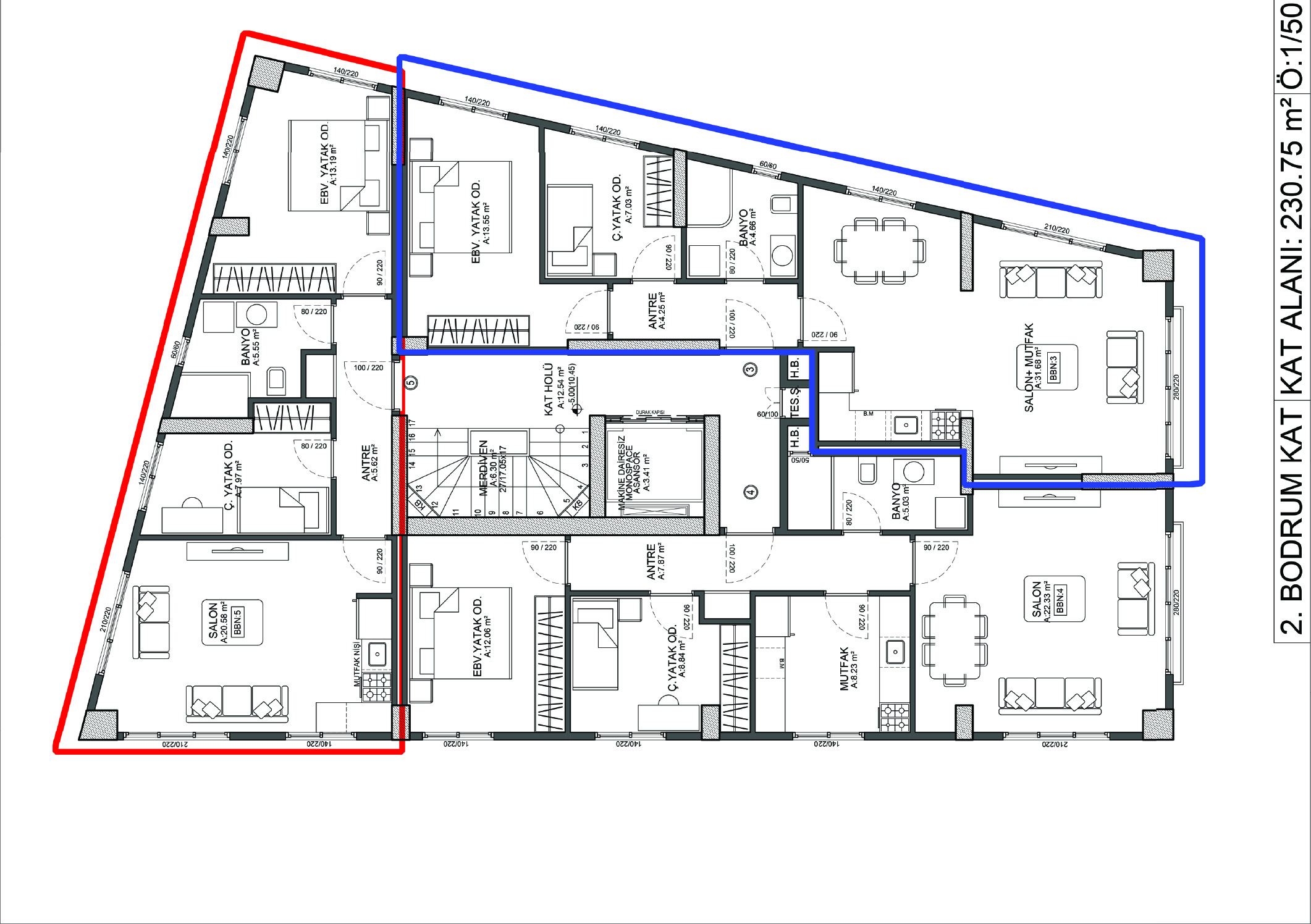
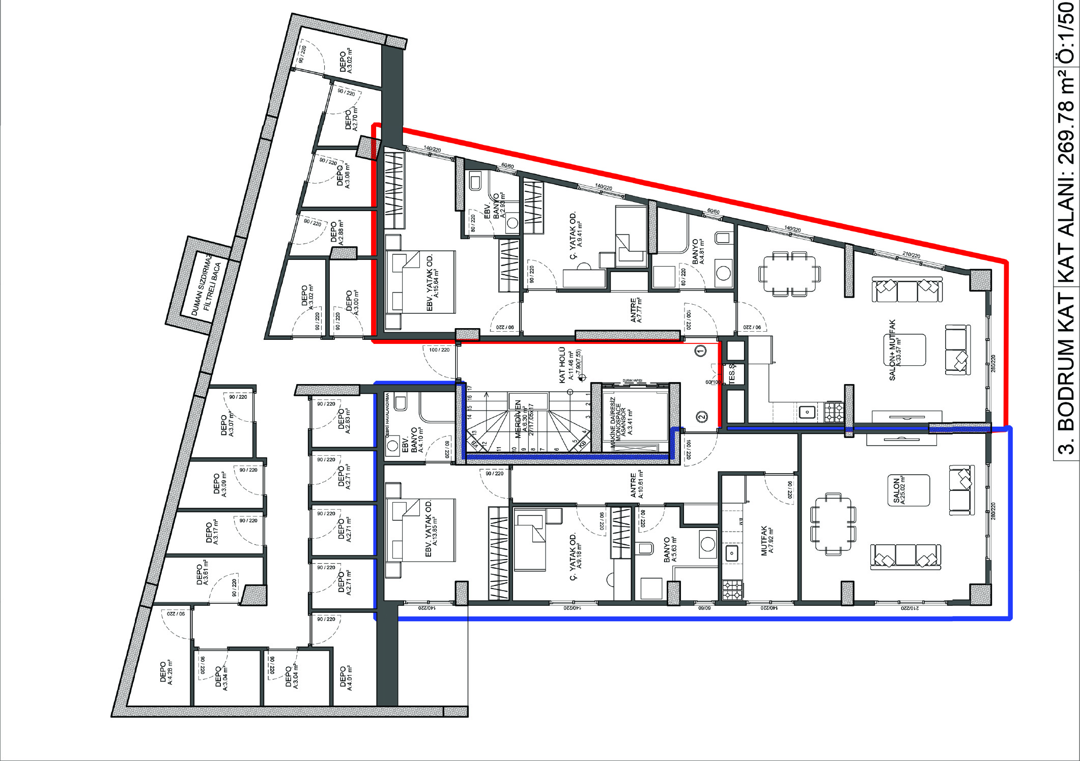
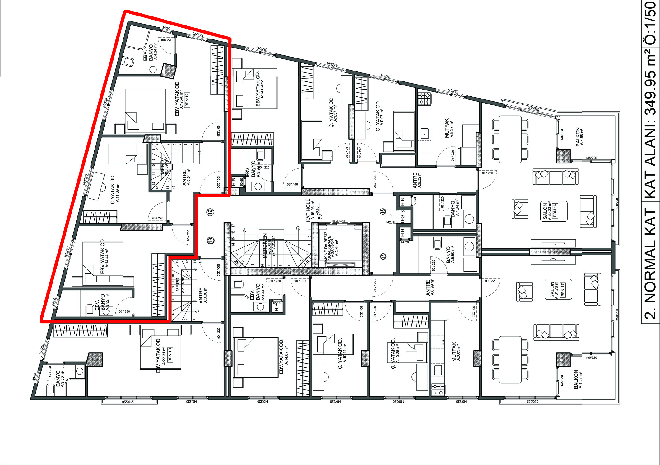
Koza 49; Üsküdar sahiline ve Marmaray’a birkaç dakika mesafede, Boğaz köprüleri ve ana arterlere kolay erişim sağlayan konumuyla, şehrin merkezinde sessiz ve güvenli bir yaşam alanı sunar. 1+1, 2+1 ve 3+1 dubleks olmak üzere 70–125 m² arası daire alternatifleri; geniş balkonlu, ferah yaşam alanlarıyla öne çıkar. Modern iç tasarım detayları ve yüksek kaliteli malzeme seçimi, fonksiyonel mutfak düzeni ve ergonomik planlama ile birleşerek konforu üst seviyeye taşır. Kapalı otopark ve sığınak alanı, gelişmiş ısı ve ses yalıtım sistemleri, teknik hacim ve depolama çözümleri ile güvenli bina altyapısı; günlük yaşamı pratik ve huzurlu kılar. Koza 49, modern şehir yaşamını kalite, güven ve estetikle birleştirerek Koza Mesken markasının değerini yansıtan prestijli bir konut projesidir.
1999 yılından bu yana İstanbul’un seçkin bölgelerinde sağlam, estetik ve yüksek kaliteli konut projeleri hayata geçiriyoruz. Kuruluşumuzdan bugüne kadar çevre ve yaşam değerlerine saygılı, modern mimariyle öne çıkan yapılar üretmeye odaklandık.
Bugün, Meltem Salacak, Didem Salacak, Trend Çamlıca, Nar Salacak ve Uğur Salacak projelerimizle binlerce kişinin güvenini kazanmanın gururunu yaşıyoruz.
Her projemizde, kalite, güven ve müşteri memnuniyetini ön planda tutuyor; İstanbul’un değerine değer katacak, zamana meydan okuyan yaşam alanları tasarlıyoruz.
Koza Mesken olarak, konumu, manzarası ve kalitesiyle ayrıcalık yaratan projeler geliştirmeye devam ediyoruz.
İstanbul’un Eşsiz Manzarasına Açılan Yeni Yaşamınız
Üsküdar’ın en değerli noktasında, Kız Kulesi ve tarihi yarımadaya hâkim manzarasıyla benzersiz bir yaşam sizi bekliyor. Şehrin merkezinde konforu, manzarayla buluşturun.



